|
Monasterio de Santa María la Real de Vileña
Situado en la villa del mismo nombre al noreste de Burgos, encontramos los restos del que fue el monasterio de Santa María la Real.
La fundación del monasterio se sitúa el 15 de abril de 1222, cuando se produce la donación por parte de Urraca López de Haro, la misma fundadora del monasterio riojano de Cañas. Hija de D. Lope Díaz de Haro y Aldonza Ruiz de Castro. Al frente de la comunidad que procederá de las Huelgas de Burgos se sitúa la abadesa Dª Elvira García. El monasterio será objeto de concesión pontificia por Honorio III y de Inocencio IV.
El monasterio recibe privilegios y donaciones de Fernando III, que además de confirmar lo donado por la fundadora añadirá Villaprovedo y la Vid
El monasterio se ve gravemente afectado por la guerra entre Pedro I y Enrique II, obligando a las monjas a refugiarse en la vecina Briviesca. En 1367 las tropas inglesas asaltan el monasterio, produciendo su decadencia económica. Las monjas recuperan su monasterio iniciando un período de prosperidad, como consecuencia de las diversas donaciones de nobles como la familia de Rojas - Fernan González, que donan la hacienda de Terrazos, Santa Olalla, Posadas, Cubo y Santa María de Rivarredonda, los Díaz Sánchez a través de Dª Endrequina viuda de Díaz Sánchez de Rojas en 1349, y Sancho Sánchez que dona dos mil maravedíes al monasterio con el objetivo de construir una fuente y construir en el su lugar de enterramiento.
El monasterio se mantiene hasta el siglo XIX, cuando en 1868 tienen que abandonar el lugar para refugiarse en su casa madre, regresando en 1872.
A causa de un incendio el 22 de mayo de 1970, se abandona el monasterio, trasladándose a Villarcayo , donde se construyó un nuevo edificio, lo que ocasionó la ruina del monasterio que prácticamente esta desaparecido
Las monjas de Villarcayo permanecen formando parte de la Congregación cisterciense de San Bernardo

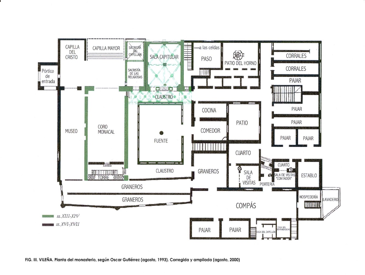
Plano de Santa María la real de Vileña tomado de (Bibliografía) |